Karakuri regál 22071453

Kód: 22071453

Regál vhodný na implementáciu metódy Karakuri. Systém využíva valčekové trate a gravitáciu pre ľahký pohyb prepraviek. Regál je celý popis a parametre

Termín dodania 3-4 týždne.

Cena na vyžiadanie

Počet kusov

Popis a technické parametre

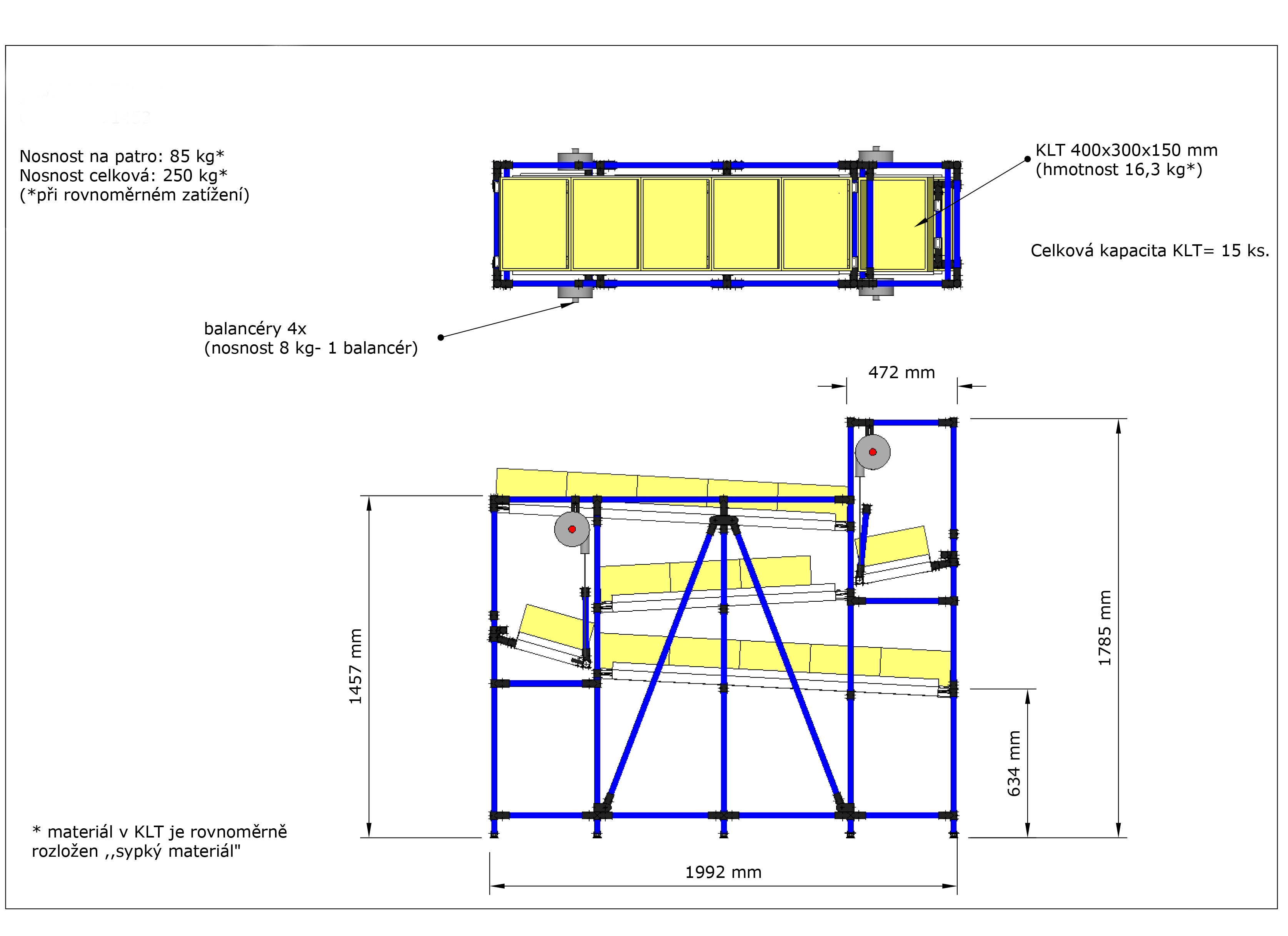
Karakuri regál 22071453

Regál vhodný na implementáciu metódy Karakuri. Systém využíva valčekové trate a gravitáciu pre ľahký pohyb prepraviek. Regál je vhodný pre KLT prepravky 400 x 300 x 150 mm a celková kapacita regálu je 15 ks. Nosnosť poschodia 85 kg, celková nosnosť 250 kg. Regál je vybavený 4x balancérom s nosnosťou 8 kg.

  • vhodný pre implementáciu metódy karakuri
  • vhodný na prepravu KLT prepraviek 400 x 300 x 150 mm
  • 4x balancér s nosnosťou 8 kg (celková nosnosť 32 kg)
  • celková kapacita 15 ks
  • nosnosť poschodia 85 kg
  • celková nosnosť 250 kg

Aplikácia na mieru, všetky rozmery je možné upraviť podľa potrieb zákazníka. Rúrky sú dostupné v niekoľkých farebných prevedeniach av ESD či nerezovom variante.

Farebné varianty ESD variant Nerezový variant
oceľová rúrka hrúbky 1 mm (LP-1100) alebo 2 mm (LP-1200) antistatická oceľová rúrka hrúbky 1 mm (CP-1100BK) alebo 2 mm (CP-1200BK) nerezová rúrka hrúbky 0,7 mm (ST-1070) alebo 1,1 mm (ST-1110)

 

Čierna varianta Variant nikel Variant strieborný
kovové spojky sú dostupné vždy v troch variantoch - čierna, strieborná a nikel
Záruka (roky): 2

Môžete si dokúpiť

Podobné produkty